13316372403

您的位置: 网站首页 > 产品中心 > 华体会平台(集团)有限公司官网 > 多线式组装线
  • 左右循环组装线
  • 上下循环组装线
  • 多线式组装线
  • 全自动四线循环倍速装配线

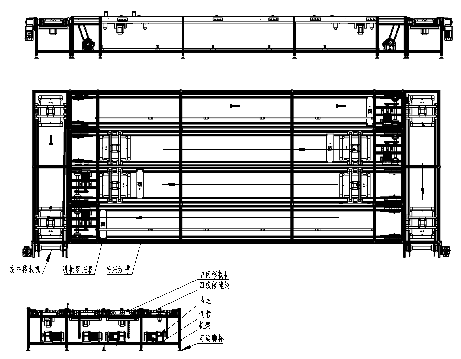
    产品类别:多线式组装线

    产品简介:

    全自动多线循环倍速装配线 ,该产品适合于复杂大产品加工、装配、包装等流水式产品批量生产;如电视机、冰箱、洗衣机等产品装配生产,采用2.5-3倍速链条+工装板输送,链条上方配专用工装板,采用PLC+手触摸屏编程控制,多线体全自动循环, 每个工位配1个阻挡气缸;全线标配有物料台, 全线体可以标准配装了LED灯具、工具吊轨、气管及接头、线槽及插座、工艺SOP架、配电箱和三色指示灯等。

    采购热线:13316372403

    电话咨询 返回上页

    图片1.png

    图片2.png



    电话联系 联系方式

    微信

    微信公众号

    关注微信

    电话

    座机:0752-2311081 手机:13316372403

    顶部